Immobili trovati: 1
I TUOI PREFERITI
(Cliccaper aggiungere qui)

Commerciale Prato #5611
Commerciale Vendita
cod. #5611


Prato Zarini
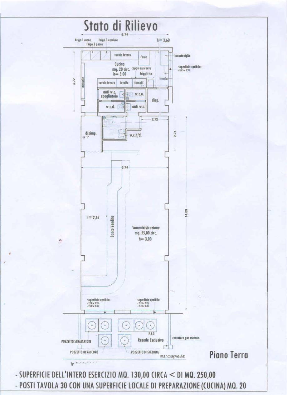
140 m2   Locali 3   Bagni 3  

100.000 €

Dettagli
Vendita Commerciale Prato Zarini #5611 n.1Vendita Commerciale Prato Zarini #5611 n.2Vendita Commerciale Prato Zarini #5611 n.3Vendita Commerciale Prato Zarini #5611 n.4

PRATO zona Valentini cedesi attività di Gastronomia Rosticceria Tavola calda con somministrazione di alcolici in ottime condizioni senza necessità di interventi. Il locale di circa 140 mq. è composto da una sala principale con bancone vendita, una saletta arredata che può ospitare fino a 30 coperti, una cucina attrezzata con canna fumaria, una dispensa e tre bagni a norma. Il locale dispone di un resede esclusivo con possibilità di mettere dei tavoli. L'attività è specializzata in preparazioni di piatti pronti da asporto, preparati ogni giorno con ingredienti locali e ricette di famiglia. L'attività con ottime potenzialità di sviluppo è adatta a conduzione familiare, preferibilmente del settore. Incassi dimostrabili che rappresenta un'ottima base per chi desidera investire in un'attività già ben avviata. Il canone mensile di locazione € 1.100 oltre iva. Richiesta Euro 100.000 con dilazioni di pagamento. (Rif. 5611)
Ingresso indipend.:
Riscald. autonomo:
Tipo riscaldamento:
Pompe di calore
Alimentaz. riscaldamento:
Elettrico
Diffusione calore:
Impianto circolaz. aria
Condizionatore:
Autonomo
Infissi:
Metallo
Vetri:
Doppi
Orientamento:
Nord
Cucina:
Abitabile
Piano:
Piano terra
Livelli:
1
Tot. piani:
3
Stato occupaz.:
Libero al rogito
Classe energ.: G
EPgl,nren: 160 kWh/m2 anno
EPgl,ren: --
PE fabbricato Estate:
PE fabbricato Inverno:
Edificio ad energia quasi 0: No

RICERCA AVANZATA













CERCA

PrivacyAccetto *


Sei arrivato qui
SERVIZIO GRATUITO DI RICERCA TRAMITE AGENZIA
Non hai trovato l'immobile che desideri? Segnalaci le caratteristiche e lo cercheremo per te. Sarai avvisato appena lo troviamo.
Navanzino Giacomo d.i. | P.I. 02312120971 | Tel 0574.842412 | Privacy | Cookies
Riksoft, Gestionale immobiliare DataDomus
Siti per agenzie immobiliari 4.50.2 | Stat
Case e appartamenti Prato, Studio Immobiliare GM. Agenzia immobiliare